Onze werking
Bespreking & ontwerp
Opmeting
Als u akkoord gaat met onze diensten, zullen wij ter plaatse een opmeting uitvoeren. Dit is een essentiële stap om kwalitatief hoogwaardig en perfect maatwerk te kunnen leveren. Door iedere ruimte zorgvuldig op te meten, kunnen wij de maximale benutting van uw ruimte garanderen. Dit resulteert in een optimaal ontwerp en een eindproduct dat volledig aan uw wensen voldoet. Kies daarom voor onze professionele opmetingsservice en laat ons uw ruimte omtoveren tot een functionele en esthetisch verantwoorde omgeving.
Gedetailleerd plan
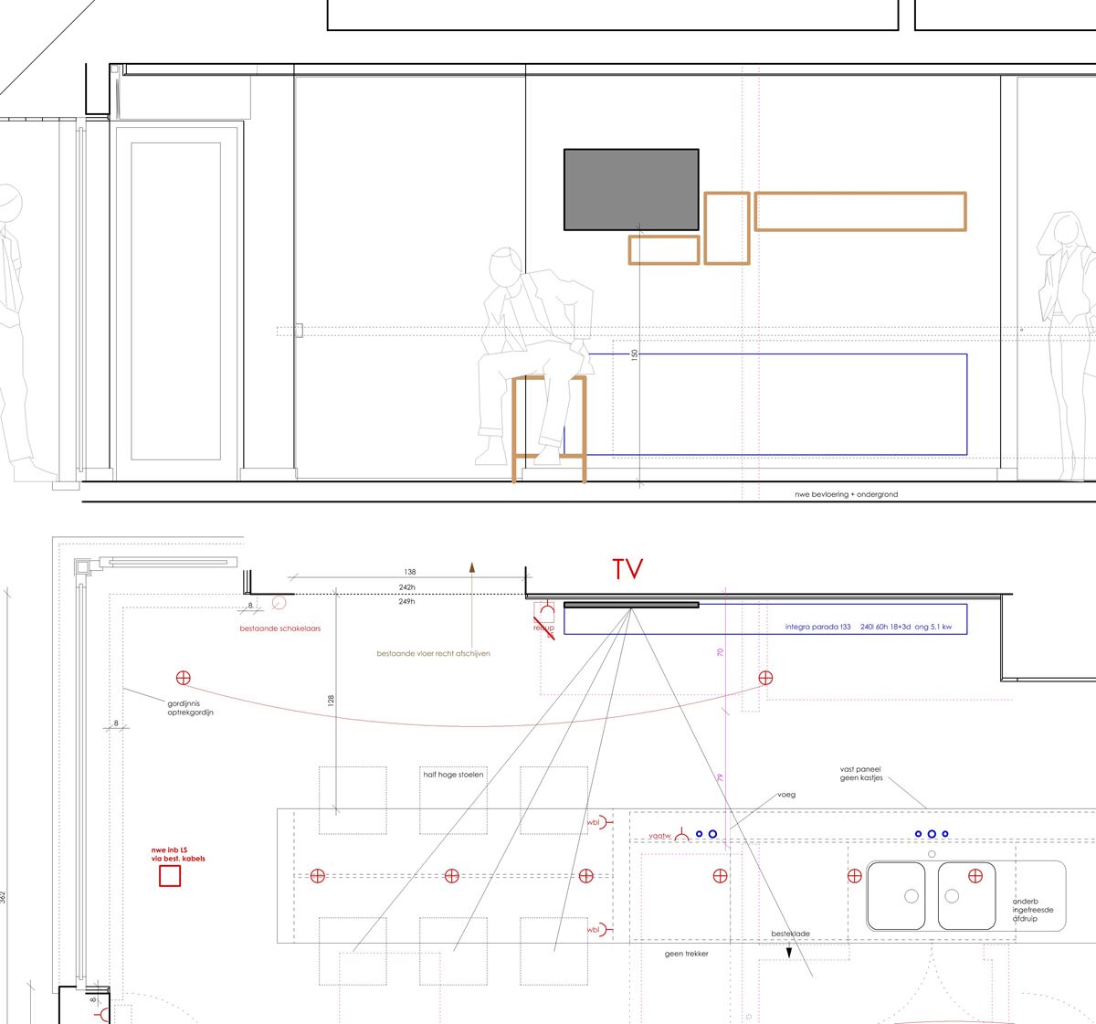
Onze interieurarchitect tekent voor u een gedetailleerd plan uit waarin alle aspecten van uw project tot in de kleinste details worden uitgewerkt. Zo worden alle maatmeubilair en toestellen zorgvuldig ingetekend op het plan, zodat u een duidelijk beeld krijgt van het eindresultaat. Bovendien worden alle nodige nutsvoorzieningen, zoals water, elektriciteit en ventilatie, eveneens ingetekend op het plan. Op die manier heeft u een compleet en gedetailleerd overzicht van het volledige project. Kies daarom voor ons en onze professionele interieurarchitect, en geniet van een prachtig ontwerp dat volledig aan uw wensen voldoet.
Materialen
Bij ons wordt er altijd samengewerkt met de klant om tot het perfecte eindresultaat te komen. Daarom wordt tijdens het overlopen van het gedetailleerde plan ook aandacht besteed aan de keuze van de materialen. Samen met u leggen we de materialen vast die het beste passen bij uw wensen en budget. Om een duidelijk beeld te krijgen van de kleuren en materialen die gebruikt zullen worden in het project, maken we ook een moodboard op. Op deze manier krijgt u meteen een goed gevoel van hoe de ruimte eruit zal komen te zien. Kies daarom voor ons en onze professionele aanpak, en geniet van een prachtige en stijlvolle inrichting die volledig aan uw verwachtingen voldoet.
Planning
Bij ons wordt er altijd gewerkt met transparante en gedetailleerde offertes. Na het overlopen van het gedetailleerde plan en het vastleggen van de materialen, maken wij voor u een offerte op maat op. Hierbij worden alle gekozen materialen en hun prijzen duidelijk vermeld. Ook wordt de planning voor de uitvoering van de werken vastgelegd, zodat u steeds op de hoogte blijft van de voortgang van het project. Bovendien zorgen wij ervoor dat alle nodige materialen en toestellen tijdig besteld worden, zodat de werken op een vlotte en efficiënte manier kunnen verlopen. Kies daarom voor onze professionele aanpak en geniet van een zorgeloze en transparante ervaring bij de realisatie van uw droomproject.




